

Montesson (FRANCE)
LIeu: Montesson (FRANCE)
Maître d'Ouvrage: Fondation Leopold Bellan
Maîtrise d'Oeuvre : R2B architectes
Architecte collaborateur: Léa Perez Architecte
Année de livraison: Juillet 2018
Surface: 9650m2
Coût des travaux: 13 773 000€
Mission: Conception
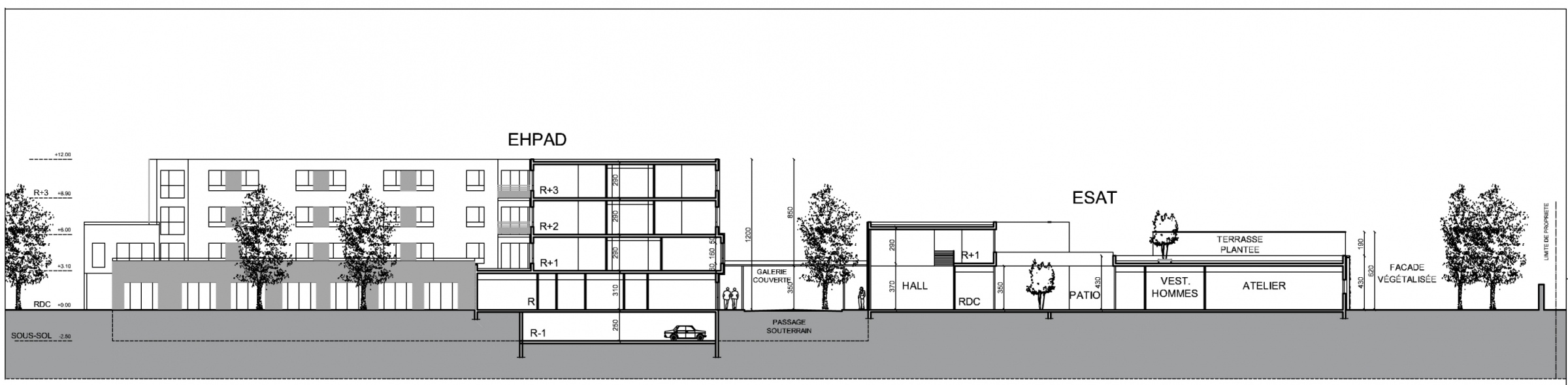
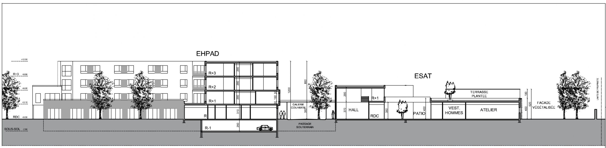
Le plan général comporte deux établissements distincts et s'inscrit dans la trame orthogonale historique existante de l’hôpital Roussel, qu'il prolonge. Les deux établissements occupent également des fonctions différentes:
- EHPAD (Etablissement d’Hébergement pour Personnes Agées Dépendantes), pour le bâtiment principal sur un plan en équerre.
- ESAT (Etablissement et Service d’Aide par le Travail)
L'implantation permet de bénéficier de la vue direct sur la Seine qui se troyve à proximité.
Le projet est inscrit dans une démarche environnemental (certification HQE : certification NF HQE pour l’ESAT et H&E pour l’EHPAD).





